Προς Πώληση Οικόπεδο 4.652 τ.μ. με Οικοδομική Άδεια Βίβλος, Νάξος

Επισκόπηση

Ταυτότητα
2128
Τιμή
€ 300,000
Τύπος
Αγροτεμάχιο
Συμβόλαιο
Πώληση
Τοποθεσία
Νάξος / Βίβλος
Επιφάνεια οικοπέδου
4652 τ.μ.
Δόμηση για κατοικία
Yes

Προς Πώληση Οικόπεδο 4.652 τ.μ. με Οικοδομική Άδεια Βίβλος, Νάξος
Βρίσκεται στο νησί της Νάξου, στην περιζήτητη περιοχή της Βίβλου, αυτό το υπέροχο οικόπεδο 4.652 τ.μ. προσφέρει ένα φυσικό, ανέγγιχτο τοπίο, χαρακτηριστικό των Κυκλάδων, με εκπληκτική θέα στο ηλιοβασίλεμα, την πόλη, το λιμάνι, το νησί της Πάρου, καθώς και τις παραλίες της Πλάκας και του Όρκου.
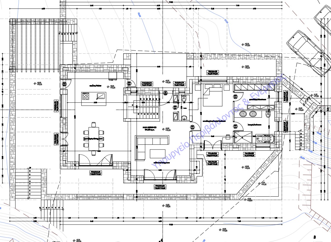
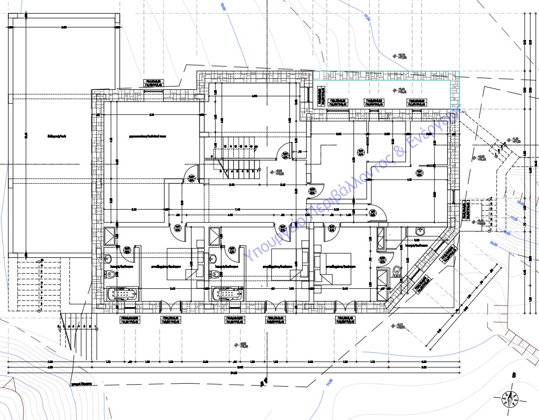
Το οικόπεδο πωλείται με έγκυρη οικοδομική άδεια για κατοικία 205 τ.μ., με επιπλέον υπόγειο 121 τ.μ.
Ένα σπάνιο ακίνητο που συνδυάζει ηρεμία, μοναδική πανοραμική θέα και εγγύτητα στις ομορφότερες παραλίες του νησιού.
Μοναδική ευκαιρία για ένα έργο κύριας ή εξοχικής κατοικίας υψηλού επιπέδου ή για μια ποιοτική επενδυτική επιλογή.
Real Naxos – Κτηματομεσιτικό Γραφείο Νάξος

  • Θέα στη θάλασσα
  • Θέα στο Βουνό
  • Τουαλέτες-
  • Υπνοδωμάτια-
  • Επιφάνεια οικοπέδου4020 τ.μ.
  • Τουαλέτες-
  • Υπνοδωμάτια-
  • Επιφάνεια οικοπέδου4628 - 6400 τ.μ.
  • Τουαλέτες-
  • Υπνοδωμάτια-
  • Επιφάνεια οικοπέδου10.800 τ.μ.

Σύγκριση Ακινήτων

Τα αγαπημένα μου

No properties found.