For Sale: Ground-Floor Newly Built House with Pool, 140 m from the Sea – Agia Anna, Naxos

Property overview

ID
1161
Price
€ 420,000
Type
House
Contract
Sale
Location
Naxos / Agia Anna
Total Floor Area
66.83 sq.m.
Bathrooms
1
Bedrooms
2

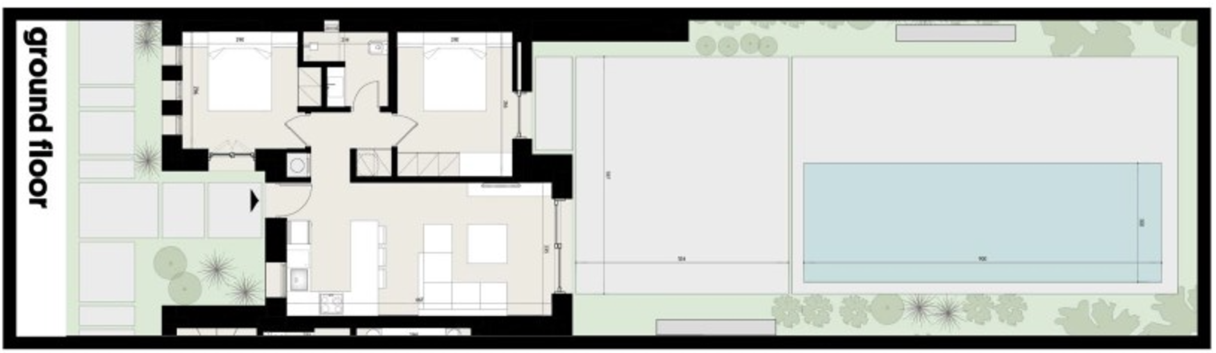
In the heart of one of Naxos’ most sought-after areas, in Agia Anna, a newly built ground-floor house of 66.83 sq.m. is available for sale. The property features a private pool and is just 140 meters from the sea.
The house combines Cycladic aesthetics with modern construction standards, offering a high level of comfort and quality of life. It consists of two spacious bedrooms, one bathroom, and a large open-plan living room with kitchen, designed for functionality and everyday enjoyment.
Special attention has been given to energy efficiency, as the property is constructed with stone and thermal insulation, ensuring ideal living conditions throughout the year. It is also equipped with a heating and cooling system using a heat pump and fan coils, as well as a solar water heater.
The exceptional location, just a short walk from one of the island’s most beautiful beaches, combined with high-quality construction, makes this property an ideal choice for both private residence and investment.

A truly unique opportunity in Naxos, rarely found.

  • Garden
  • Parking
  • Pool
  • Bathrooms-
  • Bedrooms-
  • Total Floor Area158 sq.m.
  • Bathrooms2
  • Bedrooms2
  • Total Floor Area137 sq.m.
  • Bathrooms3
  • Bedrooms4
  • Total Floor Area196 sq.m.

Compare Properties

No properties found.
Compare

My favourites

No properties found.